Наши офисы в Москве, Истре, Красногорске и Дмитрове работают по всей Московской области

Поэтажный план и экспликация

Проектировщики группы кадастровых инженеров занимаются согласованием и разработкой проектной документации для перепланировок помещений. Наши инженеры проводят необходимые замеры помещений, формируют поэтажный план и экспликацию как дополнение к техническому плану, так и отдельно.

Поэтажный план и экспликация помещения входят в состав технического плана, на основе которого происходит регистрация объектов капительного строительства, согласование перепланировок, проведение коммерческих сделок, ликвидация объекта (чтобы подтвердить износ коммуникаций).

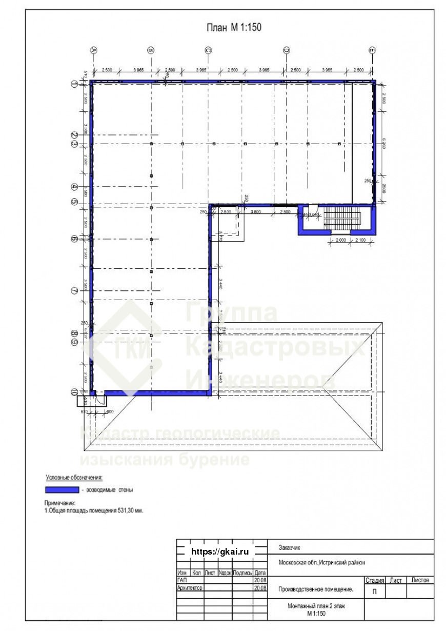
Изготавливают план в виде чертежа (схемы), который представлен на отдельном листе и отображает вид на помещение сверху. Схема содержит информацию о назначении всех помещений на этаже. Здесь же указывают общую площадь помещений: как жилых, так и нежилых. Каждой комнате присваивают индивидуальный номер, который затем расшифровывают в экспликации. Если здание многоквартирное, схему формируют для каждого этажа. Так как план представлен лишь в виде схемы, подробных сведений о помещениях здесь нет.

В пояснительной записке — экспликации, которая представлена в виде таблицы, обозначают размеры помещений, несущие конструкции и межкомнатные перегородки, оконные и дверные проёмы, системы инженерных коммуникаций (вентиляция, сантехническое и газовое оборудование, электросети). Поэтажный план и экспликация отображают текущую ситуацию помещения.

Поэтажный план и экспликацию разрабатывают как дополнение к техническому плану, так и самостоятельно в зависимости целей, для которых необходима техническая документация.

Закажите услугу и расчет стоимости работ*
* на всех этапах до и после заказа услуги предоставляется консультация юриста
+7 (495) 409-41-51
E-mail: info@gkai.ru
Прием заявок
Пн - Пт с 9:00 - 19:00*
* прием заявок в выходные дни только по предварительной договоренности
Технический план производственного помещения

Стоимость 2 000 руб. оформление 10 дней / сроч. 5 дней

Чертеж двух объединяемых участков
Поэтажный план и экспликация
Поэтажный план и экспликация
Поэтажный план и экспликация
Поэтажный план и экспликация
Поэтажный план и экспликация
Возможно вам потребуются:

Постановка на кадастровый учет10 000 руб.Наши кадастровые инженеры занимаются оформлением исполнительной документации для регистрации нежилых объектов...

Обмер квартиры10 000 руб.Группа кадастровых инженеров выполняет обмерные работы любой сложности согласно нормативным требованиям.

Отзывы об услуге Поэтажный план и экспликация

Оставить отзыв об услуге, поделиться своим мнением

Читать все отзывы
Раскрыть форму

Ваш комментарий / отзыв

Ваше имя

Отправить

Портфолио - наши работы

Работы, которые мы сделали для клиентов

Без межевания постройки на участке могут оказаться за пределами кадастровых границБез межевания постройки на участке могут оказаться за пределами кадастровых границВ нашу компанию обратился клиент с такой проблемой: при оформлении права собственности на баню, которая расположена на земельном участке, принадлежащем его маме...Подробнее

Реконструкция жилого дома на землях сельхозназначенияРеконструкция жилого дома на землях сельхозназначенияВ 2013 году в ГКИ Недкадастр обратился Владимир Геннадьевич с просьбой помочь ему узаконить реконструкцию жилого дома, который расположен на его земельном участке.Подробнее

Участок возле пожарного прудаК нам в организацию обратился владелец участка, который расположен возле пожарного пруда. В пруд поступают грунтовые воды, и они не относятся к источникам питьевой...Подробнее

Строительство дома в зоне памятника культурного наследияВ городе Истра на улице Советской, в 2015 году владелец участка построил дом без разрешения на строительство, и решил зарегистрировать его.Подробнее

Калькулятор стоимости услуг

1 - Выберите категорию:

2 - Выберите услугу:

3 - Заполните поля:

Вопросы кадастровым инженерам

Консультации и вопросы по оформлению документов

1 ответТехнический план на гараж после реконструкцииДобрый день. Надо понимать какие причины приостановки по кадастровому учету изменений. Также, если в ЕГРН гараж стоит на учете, как помещение, то и техплан делается на помещение.Подробнее

3 ответаКто узаконивает перепланировку квартиры перед сделкой купли-продажи?Добрый день. Согласование перепланировки проводится собственником объекта недвижимости. Логично, если согласовывать перепланировку будет продавец. Для согласования нужен архитектурный проект перепланировки...Подробнее

1 ответГде выдают кадастровый план территории?Светлана, добрый день. Можете его заказать в росреестре посредством обращения в мфц. Также можете обратиться к кадастровому инженеру, который готовил межевой план и запросить кадастровый план территории.Подробнее

1 ответПерепланировка демонтаж балконного проема окна с дверьюДобрый день. Начинать нужно с подготовки архитектурного проекта перепланировки, который согласовывается с Вашей управляющей компанией (при наличии) и местной администрацией, после согласования, проводятся...Подробнее

Новости

Главные новости в области строительства и кадастра

Как оформить технический план при разделе домаТехнический планКак оформить технический план при разделе домаОформление технического плана на дом после раздела поможет точно определить право собственности в соответствии с выделенными долями.Подробнее

Какие нормы при строительстве действуют в 2025 годуСогласование строительстваКакие нормы при строительстве действуют в 2025 годуВ конце прошлого года были внесены поправки в СНиП. Изменения коснулись требуемых отступов при строительстве жилых домов и хозпостроек в том числе минимального...Подробнее

Кадастровый инженерОбязательно ли делать межевание в 2025 годуС 2025 года продолжают действовать ужесточённые требования к земельным участкам. Владельцы участков без кадастровых границ не могут их продать.Подробнее

Кадастровый инженерПеревод участка из ЛПХ в ИЖС в 2025 годуПеред тем как начать строительство собственники анализируют сведения о категории и виде разрешённого использования участка. После получения информации задумываются...Подробнее

Срочные работы и документы

Заявка на выезда кадастрового инженера и выезд для обмеров, принимается только после внесения предоплаты в размере не менее 70% от стоимости предстоящих работ!