Наши офисы в Москве, Истре, Красногорске и Дмитрове работают по всей Московской области

Технический план линейного объекта

Группа кадастровых инженеров проводит замеры линейных конструкций и составляет технические планы для регистрации объектов в соответствии с законодательством. Мы также выполняем геодезические, геологические и экологические изыскания участка под строительство.

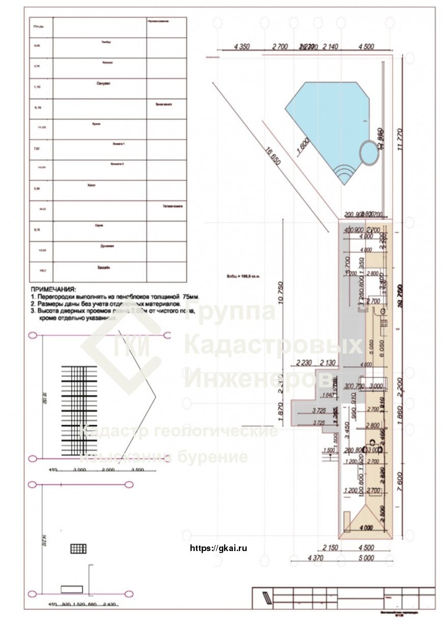
Технический план необходим для постановки объектов линейного типа на кадастровый учет. К объектам такого типа относят автомобильные и железные дороги, водо-, газо- и нефтепроводы, линии связи и электропередач, ливневые и канализационные коллекторы. На плане линейный объект изображают схематично, с описанием его технических параметров.

Согласно установленных Правительством РФ норм с марта 2013 года при вводе объекта в эксплуатацию наличие технического плана является обязательным. При отсутствии такого документа разрешения на ввод в использование сооружений выдаваться не будут. Документальное оформление требуется как при строительстве новых сооружений, так и для реконструкции эксплуатируемых объектов.

Технический план любого объекта состоит из текстового и графического разделов. В текстовом описании содержится информация о выполненных геодезических измерениях и расчетах, данные о месте расположения и технических характеристиках объекта и заключение. Графическая часть содержит схемы коммуникаций, контурные чертежи объекта или отдельных его участков, картографические планы земельных участков с указанием места размещения сооружения.

Технический план разрабатывают на основе проектной документации. С 2013 формированием планов могут заниматься только кадастровые инженеры.

Закажите услугу и расчет стоимости работ*
* на всех этапах до и после заказа услуги предоставляется консультация юриста
+7 (495) 409-41-51
E-mail: info@gkai.ru
Прием заявок
Пн - Пт с 9:00 - 19:00*
* прием заявок в выходные дни только по предварительной договоренности
Технический план

Стоимость 20 000 руб. оформление 2 недели / сроч. 7 дней

Технический план
Технический план
Технический план
Технический план
Технический план
Технический план
Технический план
Технический план
Технический план
Технический план
Технический план
Технический план
Технический план
Технический план
Технический план
Технический план
Технический план
Технический план
Технический план
Технический план
Технический план
Технический план
Технический план
Технический план
Технический план
Технический план
Технический план
Технический план
Технический план
Технический план
Технический план
Технический план
Технический план помещений
Технический план
Технический план
Технический план
Возможно вам потребуются:

Выписка из ЕГРН2 500 руб.Запрашиваем из ЕГРН выписки на недвижимость

Постановка на кадастровый учет12 000 руб.Группа кадастровых инженеров занимается подготовкой пакета документов и сопровождением постановки...

Отзывы об услуге Технический план

Оставить отзыв об услуге, поделиться своим мнением

Читать все отзывы
Раскрыть форму

Ваш комментарий / отзыв

Ваше имя

Отправить

Портфолио - наши работы

Работы, которые мы сделали для клиентов

Без межевания постройки на участке могут оказаться за пределами кадастровых границБез межевания постройки на участке могут оказаться за пределами кадастровых границВ нашу компанию обратился клиент с такой проблемой: при оформлении права собственности на баню, которая расположена на земельном участке, принадлежащем его маме...Подробнее

Реконструкция жилого дома на землях сельхозназначенияРеконструкция жилого дома на землях сельхозназначенияВ 2013 году в ГКИ Недкадастр обратился Владимир Геннадьевич с просьбой помочь ему узаконить реконструкцию жилого дома, который расположен на его земельном участке.Подробнее

Участок возле пожарного прудаК нам в организацию обратился владелец участка, который расположен возле пожарного пруда. В пруд поступают грунтовые воды, и они не относятся к источникам питьевой...Подробнее

Строительство дома в зоне памятника культурного наследияВ городе Истра на улице Советской, в 2015 году владелец участка построил дом без разрешения на строительство, и решил зарегистрировать его.Подробнее

Калькулятор стоимости услуг

1 - Выберите категорию:

2 - Выберите услугу:

3 - Заполните поля:

Вопросы кадастровым инженерам

Консультации и вопросы по оформлению документов

1 ответТехнический план на гараж после реконструкцииДобрый день. Надо понимать какие причины приостановки по кадастровому учету изменений. Также, если в ЕГРН гараж стоит на учете, как помещение, то и техплан делается на помещение.Подробнее

3 ответаТехнический план зданияДобрый день. Для формирования технического плана на здание, необходим выезд кадастрового инженера для обмера и привязки дома к земельному участку. От собственника нужно будет свидетельство или выписку о праве...Подробнее

1 ответТехнический план на основании решения судаДобрый день. На основании решения суда необходимо сформировать технический план, формируется кадастровым инженером, также нужен обмер здания (поэтажный план и экспликация).Подробнее

4 ответаКак сделать технический план на гараж?Технический паспорт имеют право готовить только аккредитованные организации, но поскольку сейчас такая аккредитация государством уже не проводится, то изготавливать технические паспорта имеют право только БТИ.Подробнее

Новости

Главные новости в области строительства и кадастра

Как оформить технический план при разделе домаТехнический планКак оформить технический план при разделе домаОформление технического плана на дом после раздела поможет точно определить право собственности в соответствии с выделенными долями.Подробнее

Какие нормы при строительстве действуют в 2025 годуСогласование строительстваКакие нормы при строительстве действуют в 2025 годуВ конце прошлого года были внесены поправки в СНиП. Изменения коснулись требуемых отступов при строительстве жилых домов и хозпостроек в том числе минимального...Подробнее

Кадастровый инженерОбязательно ли делать межевание в 2025 годуС 2025 года продолжают действовать ужесточённые требования к земельным участкам. Владельцы участков без кадастровых границ не могут их продать.Подробнее

Кадастровый инженерПеревод участка из ЛПХ в ИЖС в 2025 годуПеред тем как начать строительство собственники анализируют сведения о категории и виде разрешённого использования участка. После получения информации задумываются...Подробнее

Срочные работы и документы

Заявка на выезда кадастрового инженера и выезд для обмеров, принимается только после внесения предоплаты в размере не менее 70% от стоимости предстоящих работ!