Наши офисы в Москве, Истре, Красногорске и Дмитрове работают по всей Московской области

Согласование строительства

Также оказываем эти работы в Красногорске, Одинцово, Истре, Дмитрове, Солнечногорске и других городах Московской области

Получаем ряд согласований с органами власти в Москве и Московской области. Для этого формируем ГПЗУ, проверяем участок под застройку на наличие обременений. Выясняем с какими службами требуется согласование, какие условия нужно соблюдать при строительстве. Создаём проект будущего здания и план топографической съёмки участка в соответствии градостроительным нормам.

Заказать согласование строительства в Москве и Московской области

Согласование с аэропортами1 объект15 000 руб.
Историко-культурная экспертиза для строительства1 объект50 000 руб.
Согласование АГО1 объект100 000 руб.
Согласование строительства с Роснедрами1 объект10 000 руб.
Согласование строительства с Министерством культуры1 объект10 000 руб.
Согласование строительства с Росрыболовством1 объект15 000 руб.
Согласование строительства с Росавтодор и Мосавтодор1 объект15 000 руб.
Согласование строительства с Мособлгаз1 объект15 000 руб.

Фото наших работ и документов

Схема фасада административного здания в осях
Разрешение на строительство объекта капитального строительства
Второй лист разрешения на строительство объекта капитального строительства
Третий лист разрешения на строительство объекта капитального строительства
Сведения о разрешенном использовании земельного участка и требования к размещению объекта капитального строительства
Разрешение на строительство выданное Министерством Строительного Комплекса Московской области
Обратная сторона разрешение на строительство выданное Министерством Строительного Комплекса Московской области
Разрешение на строительство складского помещения
Согласование строительства
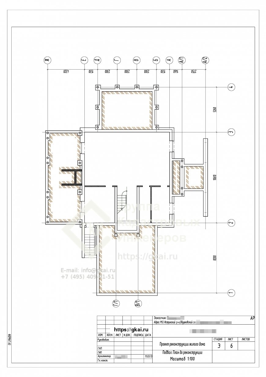
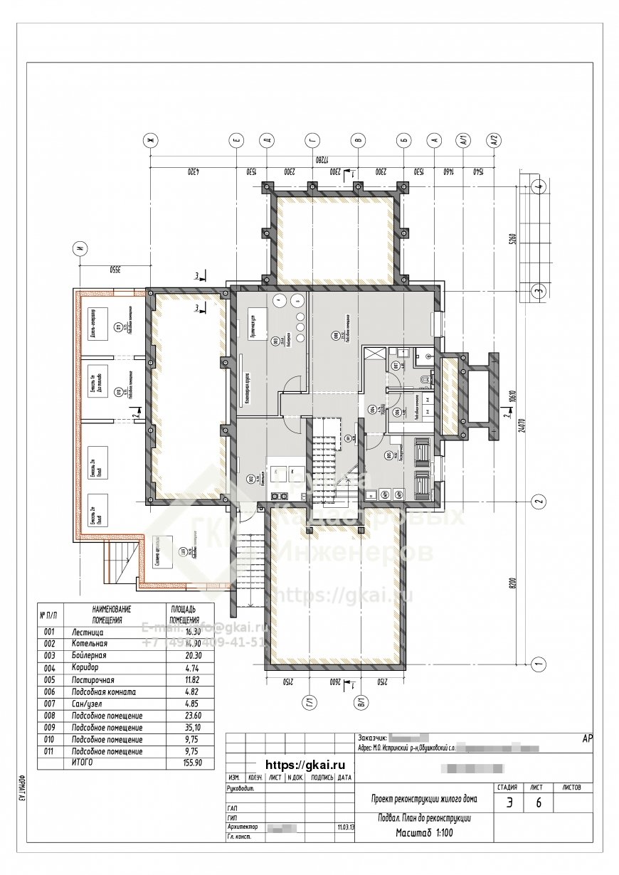
Свод планировочных данных для реконструкции
Техническое описание реконструкции второго этажа жилого дома
Сведения о перекрытиях лестнице дверных и оконных проемах
Технические решения рабочего чертежа реконструкции дома
Схема генплана с экспликацией
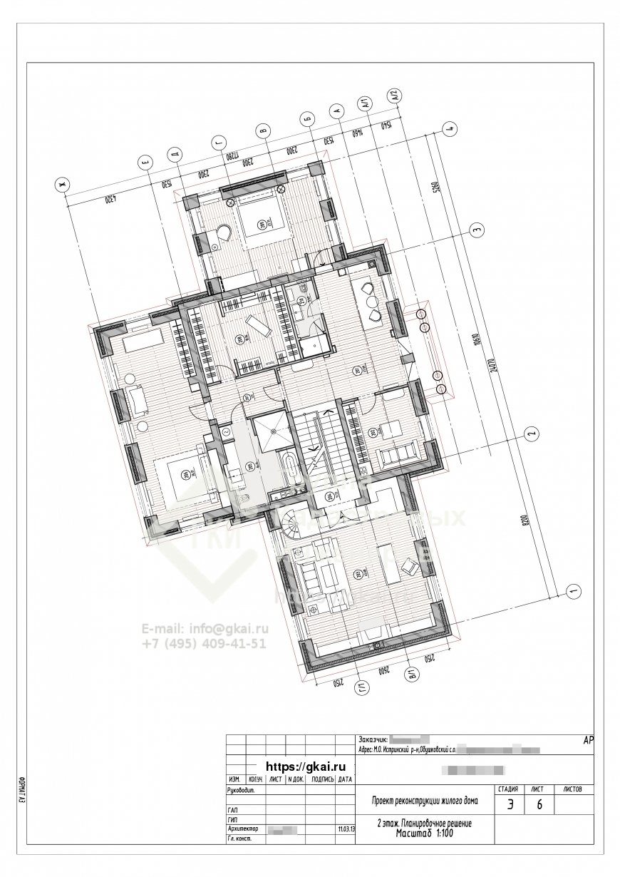
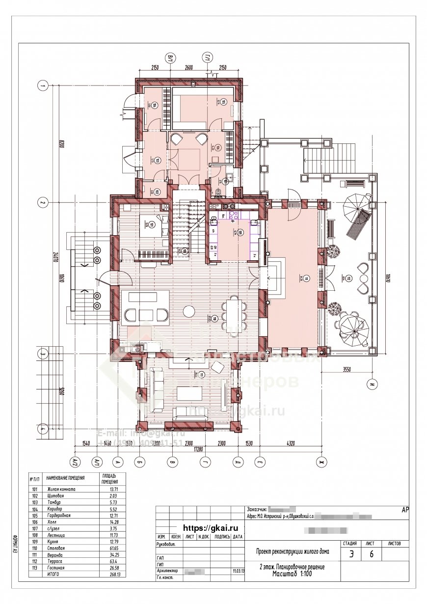
Проект реконструкции этажа
Проект реконструкции с таблицей характеристик
Проект реконструкции с выделенной зоной
Проект реконструкции этажа с характеристиками
Проект реконструкции жилого дома
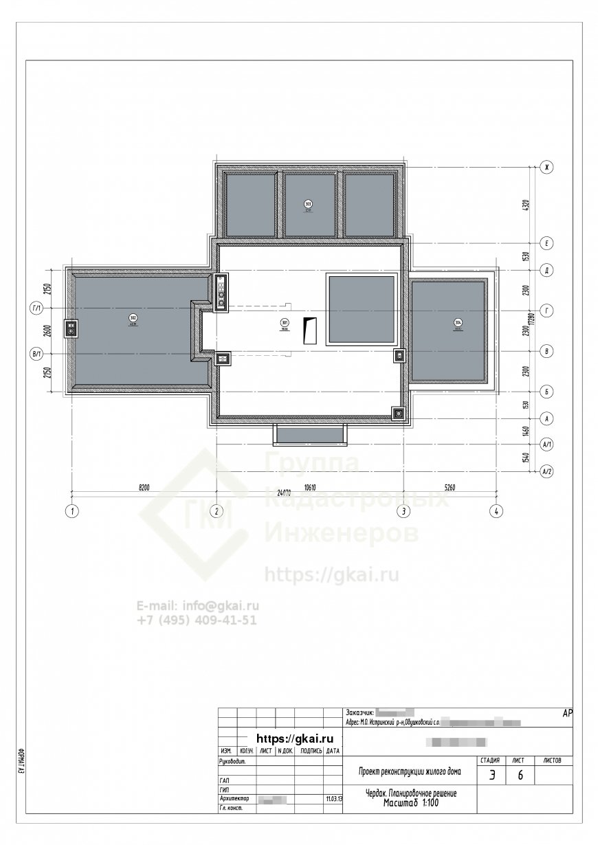
Проект реконструкции мансарды
Проект реконструкции крыши
Постановление о реконструкции
Согласование строительства
Согласование строительства

Порядок выполнения работ

Узнайте подробнее о выполнении работ и условиях оказания услуг нашей компании

Без согласования проекта невозможно получить разрешение на строительство коммерческой недвижимости, а также построить жилой дом. Если построить здание самовольно, то вероятно объект будет признан незаконным, станет причиной судебных разбирательств, а то и вовсе снесён по решению суда.

Изначально делается топографическая съёмка участка, для этого объект проверяется соответствует ли ВРИ и проводилось ли межевание. Потом заказывается градостроительный план, где описывается местоположение участка. Мы составляем ГПЗУ, но для этого желательна топосъёмка, потому что некоторые районы засняты, а некоторые не числятся в базе и чтобы не затягивать по времени требуется провести съёмку заранее. Общий срок подготовки ГПЗУ примерно месяц, а в срочном порядке в течении 2-3 недель. В плане содержится информация об ограничениях и обременениях, которые есть по земельному участку, также прорисовывается пятно застройки — это место где можно будет строиться, учитывая все отступы от границ. Отмечаются необходимые согласования, то есть соответственно с кем требуется согласовать перед началом строительства. Большей частью это Росавиация (аэропорта) и главное управление культурного наследия. Это два таких согласования, которые сейчас есть практически в любом ГПЗУ.

Мы поможем в согласовании с госорганами, получим решение. Если возникли трудности с отказом, устраним замечания, сформируем пакет документов с заявлением повторно. В сложном случае добьемся согласования через суд.

Отзывы об услуге Согласование строительства

Оставить отзыв об услуге, поделиться своим мнением

  • Отзыв от Виктория Новикова для ГКИ Недкадастр

    БОЛЬШОЕ спасибо за помощь в оставлении встречного иска на соседа, который передвинул свой забор и попытался...

  • Отзыв от Маклаков Сергей для ГКИ Недкадастр

    Самые нормальные у нас в Истре кадастровые инженеры. Во первых разобрались с моим земельным участком...

  • Отзыв от Ковалев Валерий для ГКИ Недкадастр

    Делал геодезическую съемку, гедезисты пошли на уступки и сделали скидку на 2 участка. Работают хорошо.

Читать все отзывы
Раскрыть форму

Ваш комментарий / отзыв

Ваше имя

Отправить

Портфолио - наши работы

Работы, которые мы сделали для клиентов

Строительство дома в зоне памятника культурного наследияВ городе Истра на улице Советской, в 2015 году владелец участка построил дом без разрешения на строительство...Строительство дома в зоне памятника культурного наследияПодробнее

Без межевания постройки на участке могут оказаться за пределами кадастровых границВ нашу компанию обратился клиент с такой проблемой: при оформлении права собственности на баню, которая расположена...Без межевания постройки на участке могут оказаться за пределами кадастровых границПодробнее

В 2013 году в ГКИ Недкадастр обратился Владимир Геннадьевич с просьбой помочь ему узаконить реконструкцию жилого...Реконструкция жилого дома на землях сельхозназначенияПодробнее

К нам в организацию обратился владелец участка, который расположен возле пожарного пруда.Участок возле пожарного прудаПодробнее

Срочные работы и документы

Заявка на выезда кадастрового инженера и выезд для обмеров, принимается только после внесения предоплаты в размере не менее 70% от стоимости предстоящих работ!