Наши офисы в Москве, Истре, Красногорске и Дмитрове работают по всей Московской области

Разработка архитектурного проекта дома в Красногорске

Мы занимаемся разработкой архитектурных проектов, которые требуются для того, чтобы получить разрешение на строительство коммерческих или частных объектов недвижимости. Формируем ГПЗУ, СПОЗУ, согласовываем строительные работы с Росрыболовством, Роспотребнадзором, Роснедрами и т.д. на участках, которые пересекают зону с особыми условиями.

Строительство многоквартирного дома начинается с того, что требуется провести изыскания, заказать ГПЗУ, подготовить СПОЗУ, получить техусловия на подключение коммуникаций, разработать проект будущего здания. Собранный пакет документов подаётся в Министерство жилищной политики с соответствующим заявлением, после чего необходимо получить разрешение на строительство. Для частных домов требуется составить схему строения и уведомить местную администрацию о начале и окончании строительства на объекте.

Без проектной документации получить разрешение на строительство коммерческого объекта невозможно. Подвести коммуникации законным путём также не получится. А если построить объект недвижимости незаконно, есть вероятность, что суд признает здание самовольным строением и вынесет решение о сносе такой постройки. Чтобы такого не случилось, наши проектировщики создают архитектурный проект с учётом градостроительных, санитарных норм, помогают получить согласование госорганов, если потребуется, юристы сопровождают в суде.

Проводим геодезию и геологию участка перед строительством. Контролируем процесс строительства, проводим исполнительные съёмки, следим за качеством выполненных работ, выявляем возможные дефекты, устраняем их. Для заказа услуг наших кадастровых инженеров нужно позвонить по телефону, указанному на сайте, или заполнить форму подачи заявки, указав номер или электронный адрес для обратной связи.

Оказываем кадастровые, геодезические, юридические услуги и т.д. Формируем отчётную и техническую документацию (планы, акты, журналы, схемы).

Закажите услугу и расчет стоимости работ*
* на всех этапах до и после заказа услуги предоставляется консультация юриста
+7 (495) 409-41-51
E-mail: info@gkai.ru
Прием заявок
Пн - Пт с 9:00 - 19:00*
* прием заявок в выходные дни только по предварительной договоренности
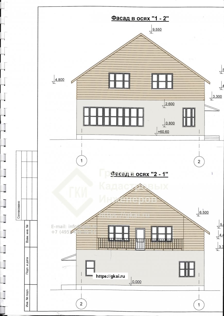
Проект фасада жилого дома в осях

Стоимость 14 000 руб. оформление 2 недели / сроч. 2 дня

Индивидуальный архитектурный проект дома
Архитектурный проект
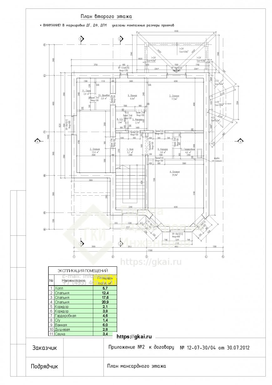
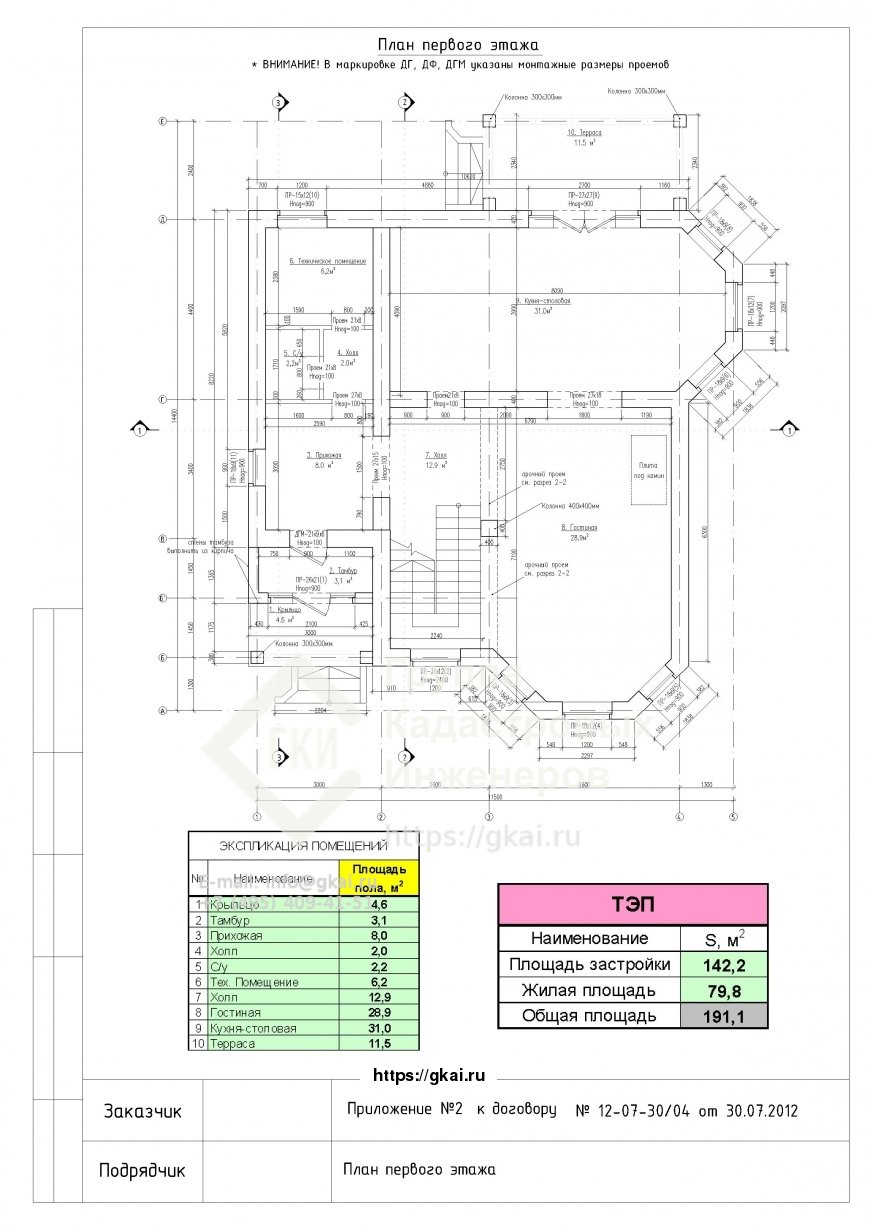
Готовый проект жилого дома
Архитектурный проект
Архитектурный проект
Архитектурный проект
Архитектурный проект
Архитектурный проект
Архитектурный проект
Архитектурный проект
Архитектурный проект
Архитектурный проект
Архитектурный проект
Архитектурный проект
Архитектурный проект
Архитектурный проект
Архитектурный проект
Архитектурный проект
Архитектурный проект
Архитектурный проект
Архитектурный проект
Архитектурный проект
Архитектурный проект
Архитектурный проект
Отчет об кадастровой стоимости и налоговыми платежами до оспаривания кадастровой стоимости
Архитектурный проект
Архитектурный проект
Архитектурный проект
Техплан здания
Архитектурный проект
Возможно вам потребуются:

ГПЗУ15 000 руб.Запрашиваем ГПЗУ перед строительством ИЖС и коммерческих объектов

Технический паспорт15 000 руб.Выполняем выезд на объект, делаем замеры и формируем техпаспорт

Отзывы об услуге Архитектурный проект

Оставить отзыв об услуге, поделиться своим мнением

Читать все отзывы
Раскрыть форму

Ваш комментарий / отзыв

Ваше имя

Отправить

Портфолио - наши работы

Работы, которые мы сделали для клиентов

Без межевания постройки на участке могут оказаться за пределами кадастровых границБез межевания постройки на участке могут оказаться за пределами кадастровых границВ нашу компанию обратился клиент с такой проблемой: при оформлении права собственности на баню, которая расположена на земельном участке, принадлежащем его маме...Подробнее

Реконструкция жилого дома на землях сельхозназначенияРеконструкция жилого дома на землях сельхозназначенияВ 2013 году в ГКИ Недкадастр обратился Владимир Геннадьевич с просьбой помочь ему узаконить реконструкцию жилого дома, который расположен на его земельном участке.Подробнее

Участок возле пожарного прудаК нам в организацию обратился владелец участка, который расположен возле пожарного пруда. В пруд поступают грунтовые воды, и они не относятся к источникам питьевой...Подробнее

Строительство дома в зоне памятника культурного наследияВ городе Истра на улице Советской, в 2015 году владелец участка построил дом без разрешения на строительство, и решил зарегистрировать его.Подробнее

Калькулятор стоимости услуг

1 - Выберите категорию:

2 - Выберите услугу:

3 - Заполните поля:

Вопросы кадастровым инженерам

Консультации и вопросы по оформлению документов

3 ответаЧто будет если строить дом без проекта?Добрый день! Для получения Разрешения на строительство жилого дома на землях населенных пунктов архитектурный проект не требуется. Сначала Вы получаете в администрации Градостроительный план земельного участка...Подробнее

1 ответОтказ департамента архитектуры в реконструкции зданияДобрый день, Ольга Сергеевна! Если найти указанное Вами Постановление городской Думы города Петропавловска-Камчатского №294 от 12.10.2010, то в приложенной к нему карте градостроительного зонирования можно увидеть...Подробнее

1 ответЕсть ли какие-нибудь требования к проектной организации для разработки документацииДобрый день. Проектная организация должна входить в СРО.Подробнее

1 ответНужен ли проект межевания территории при перераспределении земельных участков?Здравствуйте, Владимир. Все правильно администрация говорит. А потом еще утвердить нужно этот ПМТ. Но не факт что его утвердят, могут на доработку отправить. И получится потеряете 1,5 года и деньги.Подробнее

Новости

Главные новости в области строительства и кадастра

Какие нормы при строительстве действуют в 2025 годуСогласование строительстваКакие нормы при строительстве действуют в 2025 годуВ конце прошлого года были внесены поправки в СНиП. Изменения коснулись требуемых отступов при строительстве жилых домов и хозпостроек в том числе минимального...Подробнее

Обязательно ли делать межевание в 2025 годуКадастровый инженерОбязательно ли делать межевание в 2025 годуС 2025 года продолжают действовать ужесточённые требования к земельным участкам. Владельцы участков без кадастровых границ не могут их продать.Подробнее

Кадастровый инженерПеревод участка из ЛПХ в ИЖС в 2025 годуПеред тем как начать строительство собственники анализируют сведения о категории и виде разрешённого использования участка. После получения информации задумываются...Подробнее

Кадастровый инженерКак узнать стоит ли на кадастровом учёте объектЕсли проводились сделки дарения, купли-продажи с регистрацией сведений в Росреестре, объект 100% числится на кадастровом учёте. Систематизированные данные...Подробнее

Срочные работы и документы

Заявка на выезда кадастрового инженера и выезд для обмеров, принимается только после внесения предоплаты в размере не менее 70% от стоимости предстоящих работ!