Наши офисы в Москве, Истре, Красногорске и Дмитрове работают по всей Московской области

Техническая инвентаризация объектов недвижимости

Группа инженеров проводит техническую инвентаризацию капитальных объектов. Мы составляем технические и поэтажные планы с экспликациями для регистрации объектов. Инвентаризация предусмотрена в отношении зданий, сооружений, помещений и незавершённых объектов.

Проверке подлежат строения, для которых техническая инвентаризация не проводилась ранее. Учёт текущих характеристик строения ведут кадастровые инженеры. На объект заводят инвентарное дело с присвоением кадастрового и инвентарного номеров. Такое дело содержит технические, правоустанавливающие и оценочные сведения о недвижимости.

Работы по инвентаризации заказывают для проверки соответствия параметров здания сведениям, указанным в технических документах, выявления изменений после первичной инвентаризации. При выявлении несоответствий с текущей ситуацией в документацию вносят корректировки. Техническую инвентаризацию проводят для формирования технического плана.

На основе плана регистрируют юридические сделки с недвижимостью, согласовывают перепланировки, постановке объекта на учёт и регистрации права. Техинвентаризацию также проводят для формирования технического паспорта.

В результате работ инженер оценивает состояние здания и подготавливает заключение о фактических характеристиках.

Закажите услугу и расчет стоимости работ*
* на всех этапах до и после заказа услуги предоставляется консультация юриста
+7 (495) 409-41-51
E-mail: info@gkai.ru
Прием заявок
Пн - Пт с 9:00 - 19:00*
* прием заявок в выходные дни только по предварительной договоренности
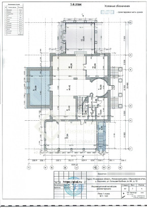
План реконструкции этажа жилого дома

Стоимость 15 000 руб. оформление 7 дней / сроч. 5 дней

Свидетельство о допуске к проектным работам и разработке конструктивной документации
Техническая инвентаризация объектов недвижимости
Сведения о работах влияющих на безопасность работ при проектирований конструктивной документации
Техническая инвентаризация объектов недвижимости
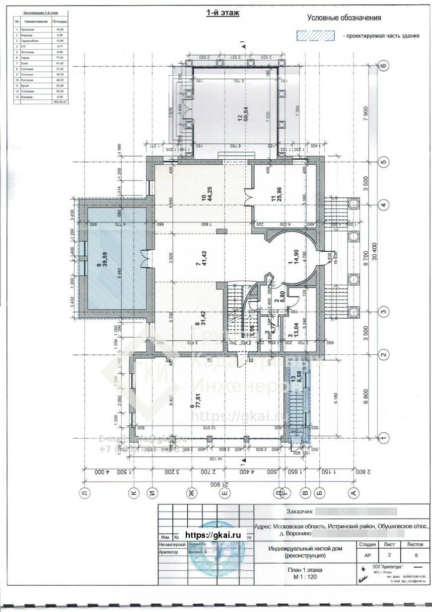
Проектная документация по реконструкции жилого дома
Техническая инвентаризация объектов недвижимости
Проектная документация по обоснованию внешнего и внутреннего вида реконструируемого жилого дома
Техническая инвентаризация объектов недвижимости
Конструктивные решения технико-экономические показатели реконструкции
Техническая инвентаризация объектов недвижимости
Схематический план реконструкции жилого дома
Техническая инвентаризация объектов недвижимости
Эскизный проект реконструкции
Техническая инвентаризация объектов недвижимости
Ведомость рабочих чертежей реконструкции жилого дома
Техническая инвентаризация объектов недвижимости
План реконструкции этажа
Техническая инвентаризация объектов недвижимости
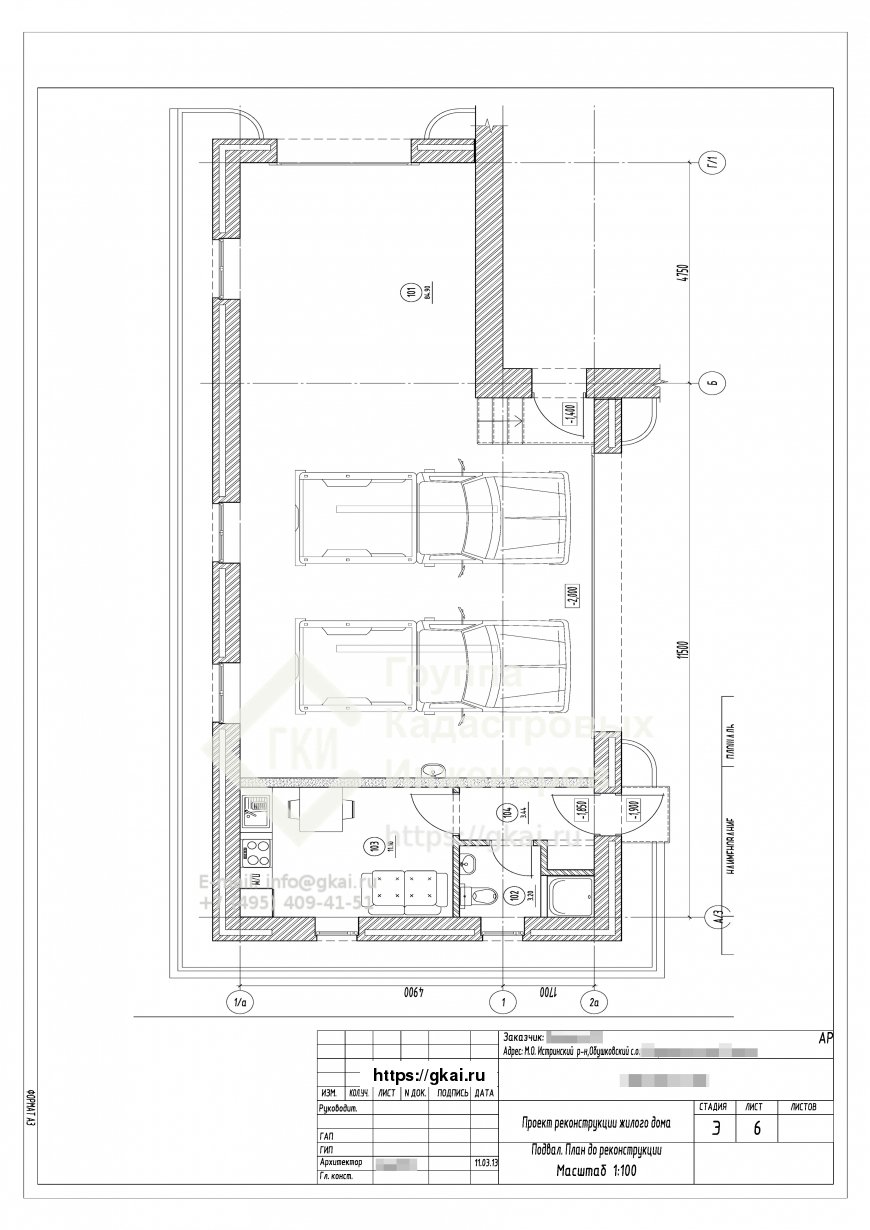
Проектная документация по реконструкции жилого дома с обозначенным подвалом - используемым как гараж
Техническая инвентаризация объектов недвижимости
Схема помещения до реконструкции жилого дома
Техническая инвентаризация объектов недвижимости
Схема части помещения до реконструкции
Техническая инвентаризация объектов недвижимости
Топографическая схема земельного участка
Техническая инвентаризация объектов недвижимости
Техническая инвентаризация объектов недвижимости
Техническая инвентаризация объектов недвижимости
Заключение кадастрового инженера по результатам определения местоположения границы и площади участка
Техническая инвентаризация объектов недвижимости
Возможно вам потребуются:

Обмер квартиры10 000 руб.Группа кадастровых инженеров выполняет обмерные работы любой сложности согласно нормативным требованиям.

Технический план50 000 руб.Проводим геодезические работы и формируем техплан на газопровод

Отзывы об услуге Техническая инвентаризация объектов недвижимости

Оставить отзыв об услуге, поделиться своим мнением

Читать все отзывы
Раскрыть форму

Ваш комментарий / отзыв

Ваше имя

Отправить

Портфолио - наши работы

Работы, которые мы сделали для клиентов

Без межевания постройки на участке могут оказаться за пределами кадастровых границБез межевания постройки на участке могут оказаться за пределами кадастровых границВ нашу компанию обратился клиент с такой проблемой: при оформлении права собственности на баню, которая расположена на земельном участке, принадлежащем его маме...Подробнее

Реконструкция жилого дома на землях сельхозназначенияРеконструкция жилого дома на землях сельхозназначенияВ 2013 году в ГКИ Недкадастр обратился Владимир Геннадьевич с просьбой помочь ему узаконить реконструкцию жилого дома, который расположен на его земельном участке.Подробнее

Участок возле пожарного прудаК нам в организацию обратился владелец участка, который расположен возле пожарного пруда. В пруд поступают грунтовые воды, и они не относятся к источникам питьевой...Подробнее

Строительство дома в зоне памятника культурного наследияВ городе Истра на улице Советской, в 2015 году владелец участка построил дом без разрешения на строительство, и решил зарегистрировать его.Подробнее

Калькулятор стоимости услуг

1 - Выберите категорию:

2 - Выберите услугу:

3 - Заполните поля:

Вопросы кадастровым инженерам

Консультации и вопросы по оформлению документов

13 ответовРасхождение фактической площади дома с техпланомМарина, добрый день. Реконструкция дома включает в себя и изменение площади дома, и этажность, при необходимости конфигурацию. Поэтому при новом замере дома кадастровый инженер должен учет все изменения...Подробнее

3 ответаТехплан для газификации кухни в домеДобрый день, Татьяна. Если дом стоит под крышей и есть окна, то можно получить технический паспорт БТИ, но учтите, что когда достроится дом, и будут возведены перегородки и выполнена чистовая отделка, площадь дома...Подробнее

2 ответаТехплан ЛЭП линии кабелей 10кВЗдравствуйте, Вера. Если есть физическая возможность их разделить в натуре - тогда обратитесь к местному инженеру, сделает соглашение и техплан. Далее сдаете в Росреестр.Подробнее

4 ответаКак получить техплан на квартиру после перепланировки?Добрый день, Анна! Требования к пакету документов при оформлении перепланировки квартиры в каждом субъекте Российской Федерации свои и немного отличаются. Для оформления уже выполненной перепланировки или перед...Подробнее

Новости

Главные новости в области строительства и кадастра

Обязательно ли делать межевание в 2025 годуКадастровый инженерОбязательно ли делать межевание в 2025 годуС 2025 года продолжают действовать ужесточённые требования к земельным участкам. Владельцы участков без кадастровых границ не могут их продать.Подробнее

Перевод участка из ЛПХ в ИЖС в 2025 годуКадастровый инженерПеревод участка из ЛПХ в ИЖС в 2025 годуПеред тем как начать строительство собственники анализируют сведения о категории и виде разрешённого использования участка. После получения информации задумываются...Подробнее

Кадастровый инженерКак узнать стоит ли на кадастровом учёте объектЕсли проводились сделки дарения, купли-продажи с регистрацией сведений в Росреестре, объект 100% числится на кадастровом учёте. Систематизированные данные...Подробнее

Кадастровый инженерПодача и оформление документов в МФЦ — Мои документыДля чего был придуман Многофункциональный центр «Мои документы» и какие операции он выполняет: МФЦ изначально — это посредник между собственником и государственными...Подробнее

Срочные работы и документы

Заявка на выезда кадастрового инженера и выезд для обмеров, принимается только после внесения предоплаты в размере не менее 70% от стоимости предстоящих работ!